Wyjątkowy projekt domu z drewna Park County o powierzchni 137,7 m² o unikalnej bryle, który spełni najbardziej wymagające oczekiwania. Głównym atutem tego domu jest przestronny salon, który łączy się z otwartą kuchnią i jadalnią, tworząc doskonałe miejsce do wypoczynku. Salon o wysokim suficie jest dobrze oświetlony, dzięki czemu wnętrze jest jasne i przytulne.

Ponadto, duże okno w głównej sypialni pozwala cieszyć się widokiem przyrody, a w wygodnej łazience znajdziesz miejsce na wannę z widokiem przez okno, która zapewni Ci chwile błogiego odprężenia. Na parterze znajdują się również dwie mniejsze sypialnie oraz dodatkowa łazienka, co pozwoli na dostosowanie przestrzeni do Twoich potrzeb.

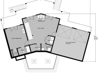
Podpiwniczenie budynku zapewnia dodatkową przestrzeń – mieści się tam sypialnia z garderobą i własną łazienką, duża sala kinową lub strefa rozrywkowa, pralnię, składzik oraz garaż na dwa samochody. Istnieje wiele możliwości wykorzystania przestrzeni podpiwniczenia. Ten oryginalny projekt spełni wszystkie oczekiwania, zapewniając wyjątkową przestrzeń do życia i wypoczynku. Tutaj znajdziesz wszystko o technologii budowy domów z bali okrągłych.

Bądź na bieżąco na naszym FacebookuInstagramie, gdzie znajdziesz aktualne promocje i realizacje. Z kolei na naszym kanale Youtube możesz zobaczyć jak powstaje dom z bali naturalnych. W serwisie Pinterest dzielimy się inspiracjami związanymi z projektami domów drewnianych, oraz estetyczną impregnacją i renowacją drewna.

Galeria zdjęć domu z drewna Park County